taptap点点手机网页专业生产一体化净水器设备
产品服务 • 品类齐全非标设计、制造能力 满足需求
1/1页
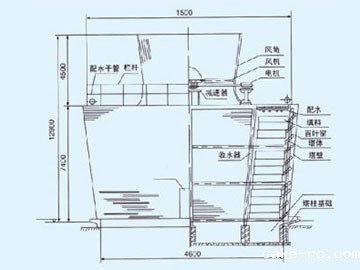
       冷却塔分类:
       按通风方式分为:自然通风冷却塔;机械通风冷却塔;混合通风冷却塔。
       按水和空气的接触方式分:湿式冷却塔;干式冷却塔;干湿式冷却塔。
       按热水和空气的流动方向分:逆流式冷却塔;横流式冷却塔;混流式冷却塔。
       按应用领域分:工业型冷却塔;空调型冷却塔。
       按噪声级别分:普通型冷却塔;低噪型冷却塔;超低噪型冷却塔;超静音型冷却塔。
       按形状分:圆形冷却塔;方型冷却塔。
       按水和空气是否直接接触分:开式冷却塔:闭式冷却塔。
       其他型式冷却塔,如喷流式冷却塔、无风机冷却塔等。
Baidu
map